Thi công nhà gỗ anh sơn tại Xã Xuân Áng Hạ Hoà Phú Thọ. Là một công trình có tính sáng tạo cao, nhà gỗ được xem là dự án hoành tráng và được nhiều gia chủ yêu thích hiện nay. Hãy cùng theo dõi những thông tin sau đây, để hiểu hơn về công trình đặc sắc này.
Thông số kỹ thuật nhà gỗ anh sơn
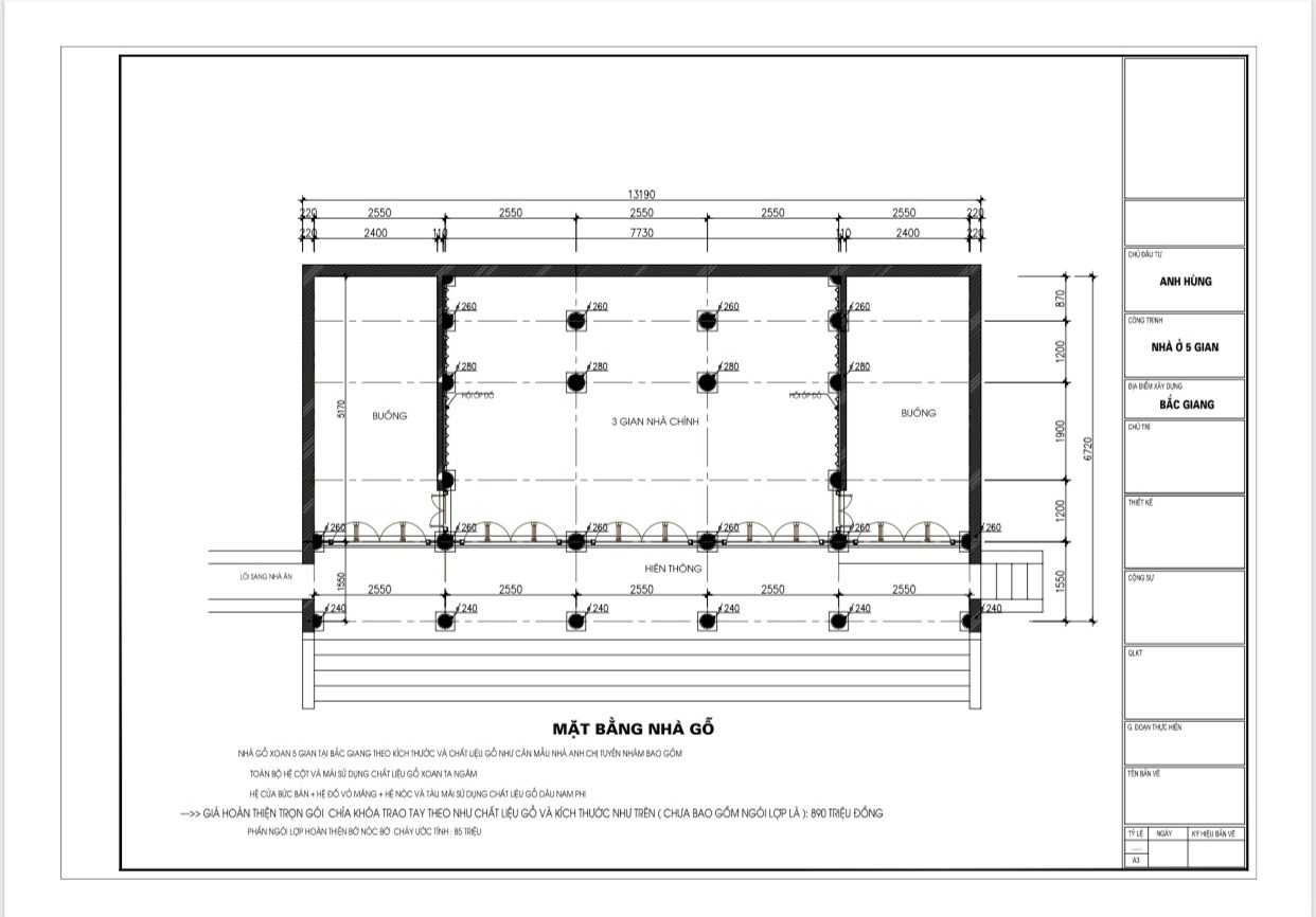
Căn nhà gỗ có diện tích, chiều dài nhà 12,89m; chiều rộng nhà 15,22m; hiên nhà rộng 1,58m. Các gian có kích thước với gian chính giữa 3m; hai gian biên bên cạnh 2,97m; hai gian ngoài cùng có kích thước 3,03m (kích thước phủ bì)
Đây là căn nhà gỗ 5 gian 24 cột. Thứ tự lần lượt các cột: cột cái 33cm, cột con 30cm, cột hiên 28cm.
Ngôi nhà sử dụng chất liệu gỗ, cam kết chất lượng hàng thương hiệu.


Thế mạnh khi làm nhà gỗ 5 gian bằng gỗ
gỗ là một trong những chất liệu cao cấp được sử dụng nhiều trong ngành công nghiệp nội thất, nhất là làm nhà gỗ cổ truyền. Hãy cùng nhau tìm hiểu những điểm mạnh và hạn chế của loại gỗ này trong xây dựng nhà gỗ.
- Thế mạnh: Lim thuộc dòng gỗ quý hiếm, có độ cứng, chắc và nặng. Thích hợp làm các cột nhà, xà nhà để hình thành nên phần khung chắc chắn nâng đỡ cho toàn bộ ngôi nhà. Xét về tính thẩm mỹ gỗ có màu sắc sang trọng và quyền quý. Hệ thống vân mây đẹp, trải dài tạo thành những hoa văn đẹp mắt. Đặc biệt gỗ còn có khả năng chống mối mọt, ẩm mốc cao, bền bỉ với thời gian. Hơn nữa mùi của gỗ còn xua đuổi côn trùng khỏi căn nhà gỗ.
- Hạn chế: Mùi của gỗ khi chưa qua xử lý sẽ gây nhiều khó chịu. Thế nên cần phải sơ chế kỹ lưỡng để không gây bất tiện cho những người sinh sống trong ngôi nhà gỗ cổ truyền. Quá trình gia công cũng khá vất vả vì trọng lượng gỗ lớn.

Phía bên trong nhà
- Ngôi nhà gỗ được xây dựng bên dưới là ngôi nhà hiện đại. Được thiết kế theo kiểu tiền kẻ hậu bẩy chồng rường có đố vỏ măng với 5 gian chính.
- Với 3 gian chính được thiết kế thông nhau, gian chính giữa là nơi thờ cúng bày trí án gian, hoành phi câu đối. Hai gian biên là nơi tiếp khách với đầy đủ phần nội thất cổ truyền. Hai gian ngoài cùng được ngăn bởi vách đố vỏ măng dành làm nơi nghỉ ngơi và lưu trữ đồ đạc trong gia đình.
- Phần tường hậu được xây gạch giả gỗ tạo nên sự hài hòa của tổng thể ngôi nhà. Phần khung song ô thoáng được thiết kế theo kiểu cổ điển đón ánh sáng cho toàn bộ ngôi nhà.
- Hệ thống ánh sáng thì ngoài ánh sáng tự nhiên của cửa sổ và cửa chính. Thì các kiến trúc sư còn lắp đặt các bóng đèn tuýp trên các dạ xà cái và sau khung lá hạ diệp gian giữa.

Phía bên ngoài nhà
- Căn nhà gỗ được được thiết kế với cầu thang nối liền bên ngoài với căn nhà hiện đại. Với phần sân khá thoáng đãng được lát gạch đỏ bát tràng với 3 bậc tam cấp. Nhà được lợp ngói ta thủ công tạo nên sự cổ kính.
- Cửa bức bàn được đục chạm pano đặc, phần trên đục ngũ phúc. Phần dưới đục chạm các bức tranh tứ quý như: đào – lê – thủ – lựu
Hình ảnh đẹp của công trình nhà gỗ












Giới thiệu về đơn vị chuyên thi công nhà gỗ tại Xã Xuân Áng Hạ Hoà Phú Thọ
Nằm trong danh sách những đơn vị chuyên thi công nhà gỗ cổ truyền uy tín và chất lượng hiện nay tại Xã Xuân Áng Hạ Hoà Phú Thọ. Nhà gỗ Dân Gian hân hạnh là cơ sở xây dựng nên những căn nhà gỗ cổ truyền như mơ ước. Đơn vị chúng tôi chuyên thi công các dự án: nhà gỗ 5 gian, nhà gỗ 3 gian, nhà gỗ sân vườn, nhà thờ họ, từ đường, đình chùa…
Nhà gỗ Dân Gian được thừa hưởng những tinh hoa làm nhà gỗ của làng nghề. Đây là một trong những cái nôi sản sinh ra nhiều bác thợ mộc lành nghề, có kinh nghiệm đục chạm, khéo léo và tỉ mỉ. Nhờ vậy mà các công trình nhà gỗ cổ truyền được ra đời đẹp về cả nội dung lẫn hình thức.
Xưởng nhà gỗ Dân Gian tại Hà Nội. Tại xưởng luôn được trang bị đầy đủ về máy móc và thiết bị nhà gỗ. Đảm bảo các công trình luôn diễn ra suôn sẻ nhất.
NHÀ GỖ DÂN GIAN
⛳Đ/C: Khu Tiểu Thủ Công Nghiệp Đồ Gỗ – X. Canh Nậu – H. Thạch Thất – Hà Nội
📞Điện Thoại: 0983.286.559 ( Mr. Thọ )
